TEAM_BLDG Designs Hidden Public Service Space "THE EARTH" - Architizer Journal

Tag : Architecture
Tag : Architizer
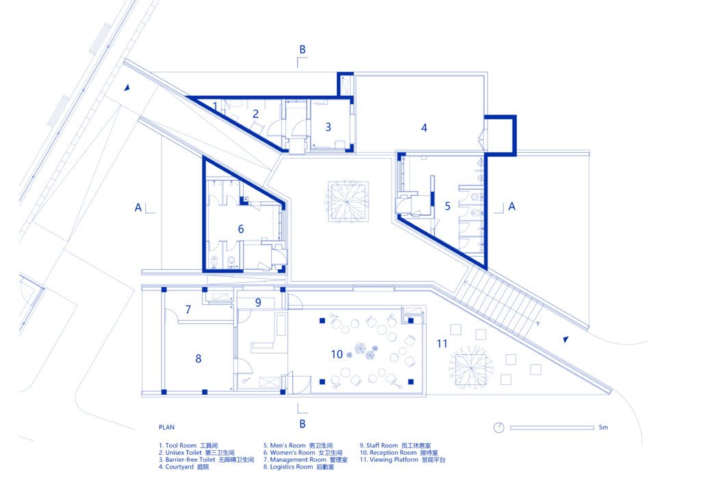
“The Earth” is hidden architecture that blends in rather than standing out. We would like our project to be the extension of the existing landscape in a proper way. As a public service space in the waterfront park, “The Earth” seems to have the possibility of “reproduction” on a logical level. …