Colectivo NDS Designs Ep_02 House with Accessibility and Sustainability in Mind - Architizer Journal

Tag : Architecture
Tag : Architizer
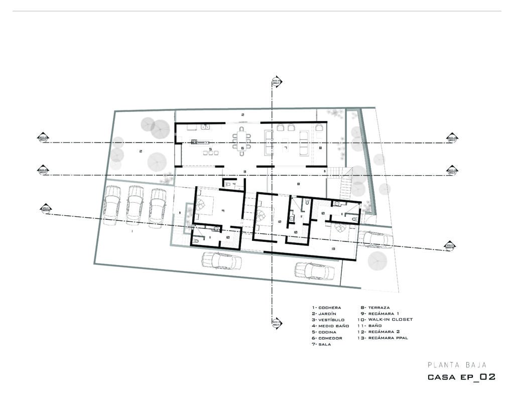
Tlajomulco de Zúñiga, Mexico EP 02 is a 340 m2 project with 2 floors, and 3 “boxes” with different proportions, materials and programs inside, stacked and connected with strategic placements and orientations to make a functional, clean, practical and attractive home, taking advantage of its location …